

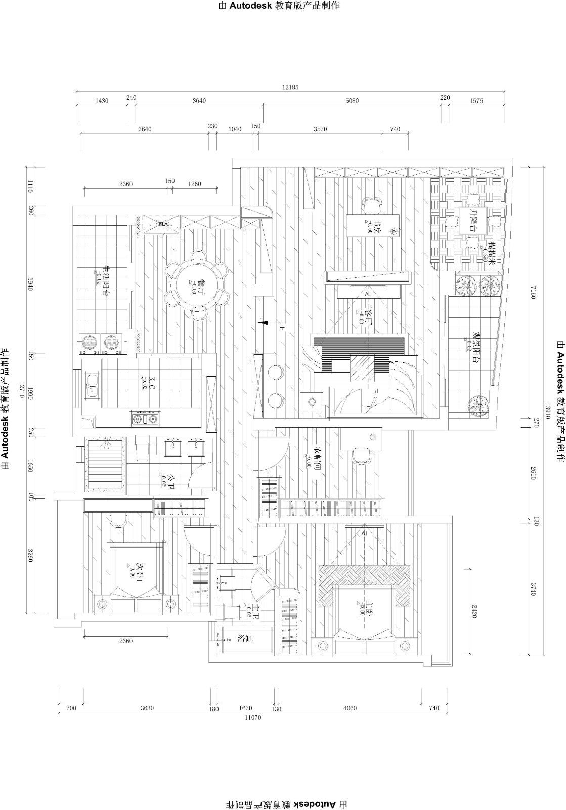
廣州雅居樂二期雍華庭三居新中式風格裝修效果圖

廣州雅居樂二期雍華庭三居新中式風格裝修效果圖

廣州雅居樂二期雍華庭三居新中式風格裝修效果圖

廣州雅居樂二期雍華庭三居新中式風格裝修效果圖

廣州雅居樂二期雍華庭三居新中式風格裝修效果圖

廣州雅居樂二期雍華庭三居新中式風格裝修效果圖
廣州101-200平米新中式風格裝修設計案例
新中式風格101-200平米三居室
惠州201-300平米新中式風格保利林語家裝設計效果圖
新中式風格201-300平米別墅
惠州201-300平米新中式風格景安花園家裝設計效果圖
新中式風格201-300平米四居室
江門201-300平米新中式風格白云尚城室內裝修設計案例
新中式風格201-300平米別墅
惠州101-200平米新中式風格榮泰河庭家裝設計效果圖
新中式風格101-200平米三居室
柳州201-300平米新中式風格大信海岸家園家裝設計效果圖
新中式風格201-300平米別墅
中山101-200平米新中式風格國韻飄香室內裝修設計案例
新中式風格101-200平米平層
江門101-200平米新中式風格雍逸廷裝修設計案例
新中式風格101-200平米四居室